Ruta de navegación

Aplicaciones anidadas

Iñigo_Yanguas_Imagen

Íñigo Yanguas

Iñigo_Yanguas_Ficha

Íñigo Yanguas Elorz

La vivienda a través del zaguán

Proyecto Fin de Carrera Máster Universitario de Arquitectura

Universidad de Navarra

Tutor: 

Iñigo_Yanguas_Texto

La vivienda de nuestro tiempo aún no existe, sin embargo la transformación del modo de vida exige su realización. 

El proyecto se emplaza en la Ciudad Lineal, una utopía de la que se sigue manteniendo su forma pero que ha sido desvirtuada con el paso de los años. Articulada por la calle Arturo Soria, se trata de un barrio tranquilo, con abundante naturaleza y de densidad baja. Se ha intentado rescatar esa unión entre el campo y la ciudad que la pandemia de covid-19 ha puesto en valor, ensalzando las posibilidades de vivir en una vivienda “unifamiliar” pero con las ventajas de estar en el centro de la ciudad y en un entorno de bosque urbano.

Proyecto de Íñigo Yanguas

Uno de los requisitos fundamentales es la inclusión de espacios ajardinados comunes, deportivos, recreativos, acuáticos y zonas de encuentro. Se entiende una planta baja bastante libre, donde el agua tiene una fuerte presencia y los diversos usos comunes que la componen se articulan mediante unos ejes muy claros marcados por la estructura, el agua o árboles. Un conjunto de espacios que te da la bienvenida, te acoge y te distribuye, entendiendo esta planta baja como un zaguán enorme.

Proyecto de Íñigo Yanguas

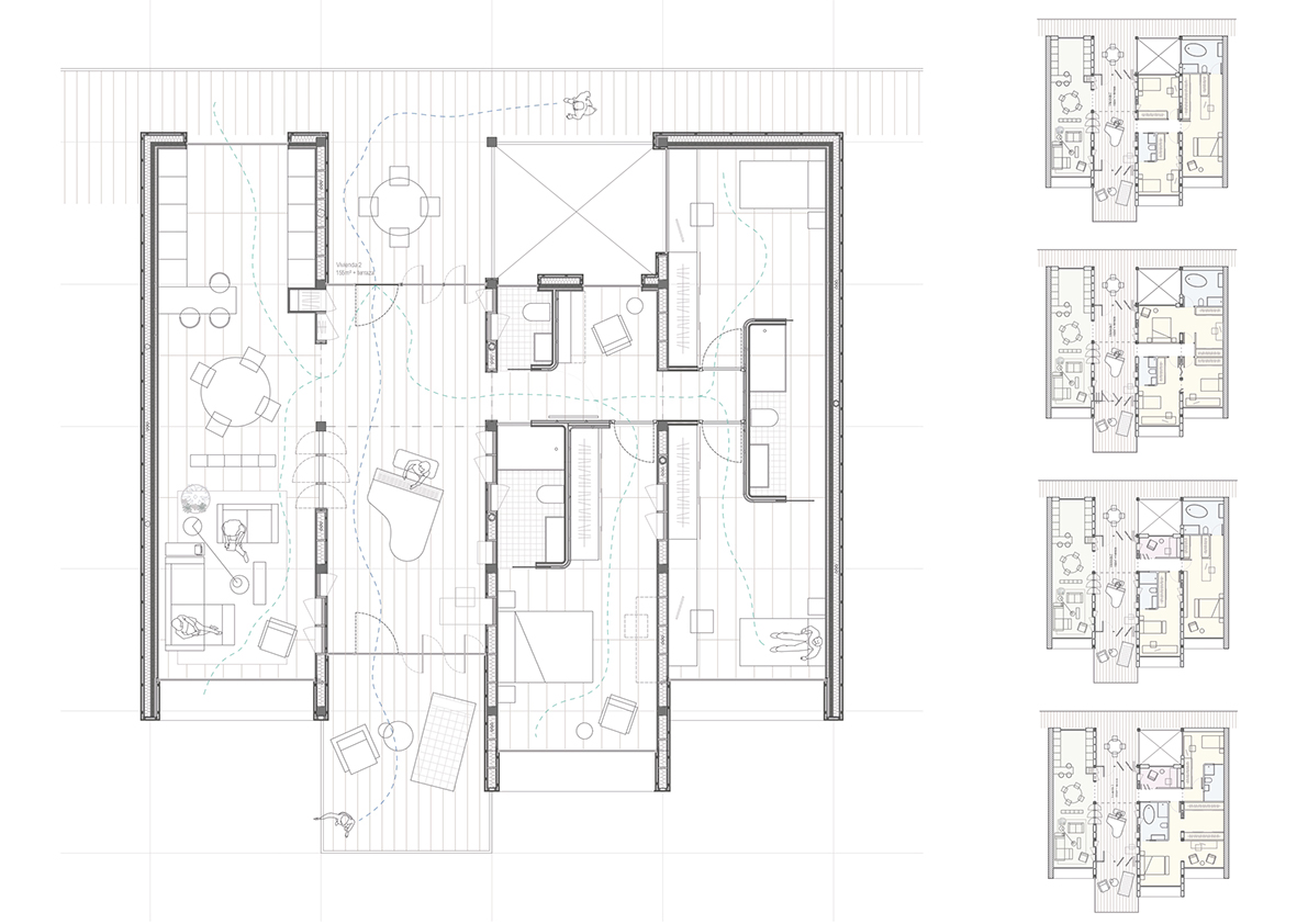
El proyecto parte de la búsqueda de lo tradicional recuperando la idea de zaguán, palabra árabe que comenzó a usarse en el siglo XVI. El acceso a la vivienda se entiende como un recorrido, una experiencia a través de los diversos espacios comunes de planta baja, a través de este zaguán enorme, el cual va disminuyendo de escala considerablemente hasta la llegada al zaguán de la vivienda.

Hoy en día el zaguán es un elemento de paso, sin carácter habitacional. Entonces qué mejor que caracterizar este zaguán como la habitación inútil requerida. Este es el espacio central de la vivienda, el cual que te recibe, te enmarca la vista y te distribuye, entendido por tanto como el elemento esencial organizador. La vivienda gira en torno a él.

Proyecto de Íñigo Yanguas

La disposición de zaguanes crea la agrupación de viviendas, basada en criterios espaciales y tecnológicos tradicionales. Organizadas en galería, para que todas las viviendas puedan gozar de vistas y mantener esa menor escala de barrio, se opta por el escalonamiento, el cual se beneficia por la condición de doble altura del zaguán.

Proyecto de Íñigo Yanguas

Proyecto de Íñigo Yanguas

Se puede apreciar este elemento diferenciador, el único de doble altura y central de la vivienda. El tamaño de esta depende de los módulos que se le acometen, creando la configuración global del proyecto. Y su correspondiente alzado, con una imagen muy potente donde la fachada narra de alguna manera la vida de las personas que lo habitan, con la presencia de los balcones y la profundidad de los zaguanes.

Proyecto de Íñigo Yanguas

Esta configuración resulta en secciones transversales con diversos ambientes y escala, destacando ciertos aspectos, como pueden ser el deslizamiento de las piezas no únicamente en planta sino también en sección, la presencia de los espacios acuáticos comunes, la doble altura del zaguán, así como la ventilación cruzada de la vivienda.

Proyecto de Íñigo Yanguas

Un edificio que en cierto modo da la bienvenida y se encuentre inmerso en un “recibidor gigante” donde se mezclan y entrelazan personas, usos, actividades, vegetación, espacios acuáticos, graderíos… y que, a su vez, los propios vecinos deben atravesar para llegar a sus casas, viviendo una experiencia.

Proyecto de Íñigo Yanguas

Se emplea la madera como elemento estructural. En los muros separadores entre viviendas y con el exterior se emplea CLT, mientras que los tabiques interiores están confeccionados por los pilares y un entramado de madera no estructural, creando esta cajas de madera, las cuales están apoyadas en unas vigas dobles de madera laminada de gran canto en planta baja, creando así un falso techo colector de instalaciones. A su vez, estas se apoyan sobre pilares de acero, dando esa amplitud y sensación de flotación en planta baja, antes de enterrase en el mundo oscuro y cerrado del aparcamiento.

Proyecto de Íñigo Yanguas

Algunos de los valores de esta vivienda son:

  • El zaguán como habitación “inútil”, como elemento organizador y que permite habitar el muro. En él se albergan diferentes usos como armarios, cajones, mesas, etc.

  • La flexibilidad que garantiza y las posibles variedades tipológicas, dando libertad para cambiar la configuración de la misma a gusto del habitante.

  • El entendimiento de la vivienda y de sus componentes casi como un mueble.

  • La resolución de los patinillos a través de los muros ya que por ellos se distribuyen verticalmente  las instalaciones.

Proyecto de Íñigo Yanguas

En definitiva, un proyecto que sirve como encuentro entre la naturaleza y la arquitectura, inspirado en las premisas en las que se basó la citada Ciudad Lineal en el que se encuentra inmersa, de menor escala que otros barrios, y que a su vez expresa la maqueta.

Proyecto de Íñigo Yanguas

TITLE_Más proyectos

Más proyectos

Aplicaciones anidadas

Beatriz_Oteiza_Mas_Proyectos_Texto

Luz y sombra

Beatriz Oteiza

Ver proyecto "Luz y sombra"

Beatriz_Oteiza_Mas_Proyectos_Imagen

Ver proyecto "Luz y sombra"