Ruta de navegación

Aplicaciones anidadas

Maite_Rodriguez_Imagen

Maite Rodríguez

Maite_Rodriguez_Ficha

Maite Rodríguez

Límite inmaterial. La concepción de un final

Proyecto Fin de Carrera Máster Universitario de Arquitectura

Universidad de Navarra

Maite_Rodriguez_Texto

La Duquesa de Osuna, María Josefa Pimentel, formaba parte de una minoría selecta de la España ilustrada que representaba el modelo de la mujer culta, de espíritu abierto e inquieto. El jardín de El Capricho, ubicado en el Distrito Barajas de Madrid, nació con la vocación de reunir a personajes de la ilustración con cierto interés en la cultura y el conocimiento. El proyecto propone incluir un nuevo pabellón que servirá de homenaje a María Josefa de Pimentel por su mecenazgo en el mundo cultural y artístico, especialmente en el mundo de la música con el fin de despertar el interés de las nuevas generaciones.

Proyecto de Maite Rodríguez

Entendimiento del lugar_ El primer contacto con el jardín se produce, paradójicamente, fuera de él. Las fuertes tapias que delimitan la Alameda de Osuna dejan ver parcialmente lo que hay en su interior, generando una tensión exterior-interior que seduce al individuo a descubrir qué esconde. El Capricho fue creado originariamente como lugar de recreo, y consistía en jardín cercado, que separaba el paraíso: artes, cultura, disfrute, etc. de lo cotidiano.

Proyecto de Maite Rodríguez

Desde fuera, uno cree conocer la escala del lugar, dónde empieza y dónde acaba, pero esto es sólo una falsa revelación. Una vez dentro, el ambiente inmediatamente te aleja de la realidad exterior mediante un claro eje en el jardín francés que dirige la atención hacia el final del mismo: el palacio.

Proyecto de Maite Rodríguez

El jardín inglés, a diferencia del francés, ofrece múltiples caminos que hacen cuestionarse cada paso: ¿por aquí… o por aquí? Y es la propia intuición la que va definiendo cada experiencia en El Capricho. Los papeles cambian, te haces pequeño y pierdes la noción del tiempo y del lugar.

Proyecto de Maite Rodríguez

"Recuerdo que avanzaba y avanzaba cubriendo las diversas “etapas” del jardín inglés hasta que de repente, me desperté del sueño ¿prohibido el paso? Nunca pensé que volvería a toparme con esas fuertes tapias hasta que lo hice. Estaba dentro, pero me sentía fuera. ¿Acaso es posible volver a un sueño del que te has despertado?” 

Permanecer en el sueño. El límite_ Si bien el Jardín de El Capricho se ha entendido como paraíso extraído del mundo cotidiano, ¿qué sucede en su límite, en la línea que separa el dentro del fuera? ¿a cuál de estos dos mundos pertenece?

Situado en el límite del jardín, el nuevo objeto abre una nueva puerta hacia otro misterio, planteando el límite como comienzo y adoptando la postura romántica de búsqueda insaciable de lo desconocido. El objetivo es permanecer dentro.

Proyecto de Maite Rodríguez

Camino conector de caminos _El objeto se asienta en el lugar de forma que tiene que ser descubierto tras la enorme masa arbolada del jardín para hacer volver al visitante sobre sus pasos, reconducirlo a los caminos, al jardín. Es por esto por lo que nos situamos en paralelo al eje del jardín francés, generando un nuevo recorrido lineal que ata los sinuosos caminos del jardín inglés permitiendo una circulación sin fin dentro de un sueño imaginario: el Capricho.

Proyecto de Maite Rodríguez

El proyecto se plantea como un cosido de piezas, conformado por tres elementos independientes: los volúmenes que configuran los espacios cerrados, la pasarela conectora de caminos y los pórticos, siendo estos últimos los que atan al conjunto.

Proyecto de Maite Rodríguez

Se parte del sistema estructural del pórtico, alterándolo de modo que los pilares de la fachada principal no lleguen al suelo. De esta forma, el edificio levita, reforzando la idea de infinitud al percibir continuidad en el plano horizontal del suelo. 

La presencia del arroyo de El Capricho es acogida como punto a favor, puesto que permite la aparición de efectos de reflejo cuando la luz entra a través de los pórticos, así como contrastar la naturaleza en permanente movimiento y cambio con una arquitectura que permanece quieta.

Proyecto de Maite Rodríguez

Por otro lado, en esta voluntad de alcanzar el infinito, el proyecto se nutre de los mismos conceptos empleados por Borges en sus laberintos: la idea de infinito y el principio del orden. “Un laberinto es un lugar determinado y circunscrito, ya sea una línea, una geometría, un desierto, o un mundo entero, cuyo interior es potencialmente infinito, pero no se trata ni mucho menos de un acontecimiento caótico, sino más bien se caracteriza por un exceso de orden.”

Por ello, la estructura consiste en una repetición del mismo elemento estructural, el pórtico. Una estructura basada en una geometría clara de la que el sujeto nunca sale, como cuando dos espejos se encuentran enfrentados.

Proyecto de Maite Rodríguez

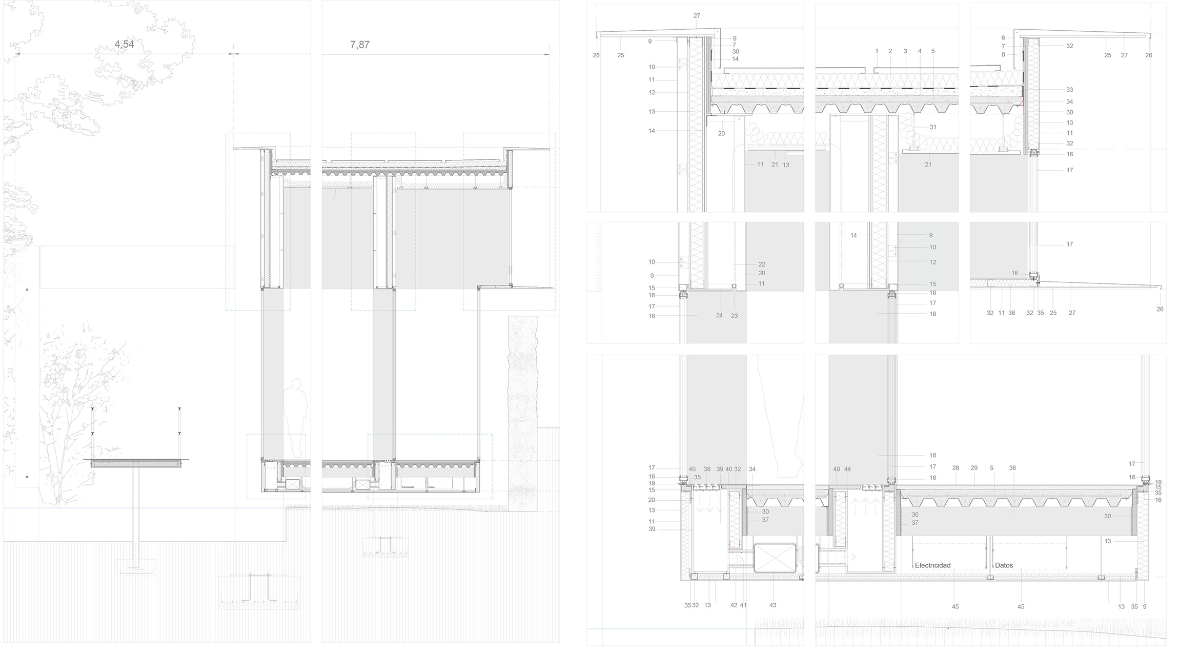
Se propone una construcción tectónica frente a la estereotómica del muro existente, empleando el acero galvanizado como el material que predomina en el proyecto. La estructura se ha diseñado de modo que los pórticos sean delgadas pletinas de acero separadas a una distancia de 1 metro generalmente que permitan reforzar la relación interior- exterior. 

La pasarela, culmina en el auditorio, que se plantea no como un final, sino como puntos suspensivos del proyecto, formando parte de una etapa más dentro del mencionado bucle imaginario. Es por ello por lo que no presenta un telón, el telón permanece siempre abierto, vivo y cambiante.

Proyecto de Maite Rodríguez

TITLE_Más proyectos

Más proyectos

Aplicaciones anidadas

Sofia_Mesa_Mas_Proyectos_Texto

Sede Grupo Multimedia, Plaza Margaret Thatcher

Sofía Mesa

Ver proyecto "Sede Grupo Multimedia, Plaza Margaret Thatcher"

Sofia_Mesa_Mas_Proyectos_Imagen

Ver proyecto "Sede Grupo Multimedia, Plaza Margaret Thatcher"