Ruta de navegación

Aplicaciones anidadas

Cristina_Campillo_Imagen

Cristina Campillo

Cristina_Campillo_Ficha

Cristina Campillo de Andrés

Move-Highland. Museo del Futuro. Centro de inmersión e investigación espacial. Madrid Nuevo Norte

Proyecto Fin de Carrera Máster Universitario de Arquitectura

Universidad de Navarra

Tutor: Mayka García Hípola

Cristina_Campillo_Texto

Proyecto de Cristina Campillo

Cuando el ser humano habite Marte, en un futuro no muy lejano, serán necesarios una serie de edificios que sirvan como puente entre ambos mundos. Partiendo de la idea de que hasta la persona más pequeña puede aportar grandes cosas, se plantea un Museo del Futuro que funcione como Centro de inmersión e investigación espacial. 

Se plantean en el programa espacios como los simuladores espaciales, el vertipuerto, el centro de paquetería interplanetaria, salas de diseño y asignación de viviendas marcianas, las salas de interacción con robots...

Proyecto de Cristina Campillo

No obstante, como Museo me preocupaba la pérdida de la calidad de la experiencia debido a las masificaciones que tiene lugar hoy en día en la mayoría de museos, es por ello que se plantea un proyecto basado en el estudio de las circulaciones. 

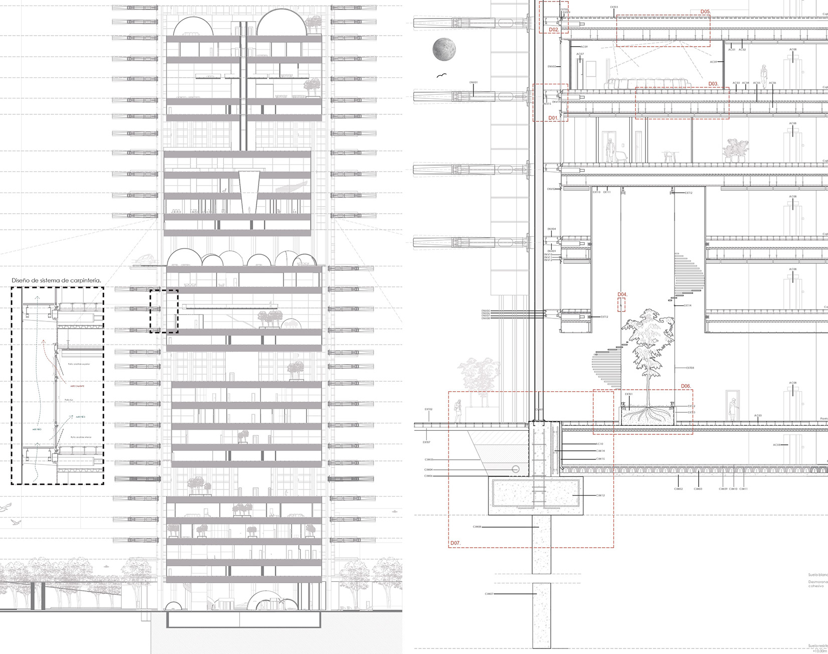
Se trata de un edificio resuelto en altura con el objetivo de liberar la parcela para continuar el gran parque central propuesto en Madrid Nuevo Norte. 

En cuanto a las estrategias urbanas, se opta por generar una serie de caminos primarios pavimentados con baldosas fotocataclíticas, es decir que absorben contaminación y mediante la luz las convierten en partículas no tóxicas. A mayores, se genera una serie de caminos desdibujados que cobran importancia en caso de masificación del proyecto y que se generan entre diversas zonas verdes, entre las que cabe destacar el uso de “Pawlonias Tormentosas híbridas de desarrollo propio con semillas no invasivas modificadas genéticamente”, ya que es una especie que absorbe 10 veces más de C02 que otras.

Proyecto de Cristina Campillo

Los espacios de mayor crecimiento (sala de conferencias, sala de prensa y zonas de challenges y hackáthones) se sitúan en planta baja con el objetivo de permitirles crecer y por último se genera una pasarela que une la parte de delante de la parcela con la del final y que rodea el tanque de agua NBL, que funciona como recolector de agua de pluviales, para favorecer los flujos de circulaciones. 

Tanto en sección como en planta baja se disgregan los usos apareciendo en la planta baja una serie de burbujas de ETFE con numerosos accesos y recorridos y ascensores dispersos y en sección 5 cajas desvinculadas con zonas exteriores que se salpican por vegetación.

Proyecto de Cristina Campillo

Proyecto de Cristina Campillo

Se generan una serie de recorridos directos y eficientes mediante ascensores para los usuarios de empleados y futuros habitantes de Marte y se genera un recorrido helicoidal para los visitantes del Museo con el objetivo de que el propio recorrido sea una experiencia en si misma. Este recorrido helicoidal a su vez se desdobla en un recorrido lento que atraviesa todas las salas y uno rápido que permite entrar puntualmente las salas que se deseé.

Proyecto de Cristina Campillo

Proyecto de Cristina Campillo

En cuanto a la materialidad del edificio, se busca que a través de la elección de los materiales se pueda aumentar o disminuir el espacio de circulaciones.

Proyecto de Cristina Campillo

La planta baja de cada caja se genera como planta técnica y en la zona central se dispone un núcleo de comunicaciones que cose las distintas partes del edificio, junto con una doble piel que remata el edificio en su envolvente. Esta doble piel se plantea abierta, de forma que el aire sube por efecto chimenea refrigerando el edificio de forma bioclimática.

Proyecto de Cristina Campillo

A este sistema se le acompaña un diseño de carpinterías exteriores divididas en tres paños, uno central fijo y uno superior e inferior abatible de forma que permite regular el acceso de aire frío o la salida del calor.

A esta piel exterior se le ancla unas piezas fibroeléctricas que convierten al edificio en un edificio prosumidor, es decir, que no sólo consume energía, sino que la genera a partir de vientos de 3m/s.

Proyecto de Cristina Campillo

En resumen, se trata de crear un edificio para habitar otros planetas, intentando proteger este.

TITLE_Más proyectos

Más proyectos

Aplicaciones anidadas

Sofia_Milet_Mas_Proyectos_Texto

Él camino

Sofía Milet

Ver proyecto "Él camino"

Sofia_Milet_Mas_Proyectos_Imagen

Ver proyecto "Él camino"