Ruta de navegación

Aplicaciones anidadas

Proyecto_IMG_Marta Perez de Albeniz

Marta Pérez de Albéniz

Terminus_19_20_Marta_Perez_Ficha

Marta Pérez de Albéniz Azqueta

Sky Corner: viviendas en altura en Madrid Nuevo Norte

Proyecto Fin de Carrera Máster Universitario de Arquitectura

Universidad de Navarra

Tutor: José Ángel Medina

TXT_Proyectos_Marta Perez de Albeniz

Proyecto Marta Pérez de Albéniz

El plan para Madrid Nuevo Norte es el plan de regeneración urbana más importante a nivel europeo previsto para los próximos años. Se trata de una oportunidad para implantar una nueva configuración de ciudad más sostenible, funcional y amable; apoyándose en unas buenas comunicaciones, grandes espacios verdes, mezcla de usos y huyendo del modelo “ciudad dormitorio”. Esta comunidad futura atraerá a miles de individuos, desde familias madrileñas hasta usuarios internacionales de media y corta estancia, gracias al nuevo centro de negocios que se creará junto a la estación de Chamartín. 

Proyecto Marta Pérez de Albéniz

En este contexto se sitúa el siguiente proyecto de viviendas en altura, pensado para acoger un programa de necesidades que el plan urbanístico creará. La ubicación exacta se encuentra próxima a la estación y al nuevo centro de negocios, además de estar en contacto con el gran parque central. Esto permite una proximidad inmediata a las principales vías de comunicación, así como un entorno ideal para familias en cuanto a zonas verdes y dotaciones públicas. En esta parte se sitúan la mayoría de los edificios en altura de la propuesta general, dejando una frontera entre lo residencial y las torres de oficinas, pero creando un conjunto con una volumetría acorde entre sí. 

Proyecto Marta Pérez de Albéniz

El movimiento resulta clave en este proyecto. La forma de la torre parte del suelo cuadrada, pero va adquiriendo una forma estrellada conforme se asciende en altura, dejando como resultado una serie de plantas en las que prácticamente ninguna coincide con otras. Estos cambios se han ordenado en cinco tramos con cinco distribuciones de planta diferentes, en donde en cada uno de los casos (exceptuando el primero) es una de las fachadas las que entra en movimiento. El objetivo principal de esto es la aparición gradual de terrazas más extensas en las partes más altas de la torre, donde las vistas se vuelven más interesantes. Además, permite jugar con la tipología de vivienda, cuya crujía se reduce a medida que se asciende. 

Proyecto Marta Pérez de AlbénizProyecto Marta Pérez de Albéniz

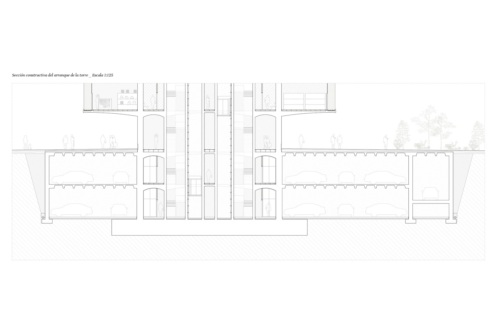
La imagen del edificio queda marcada por el ritmo horizontal que generan los forjados de cada planta. Estas franjas no son siempre iguales, varían según el uso y la orientación, condicionadas por la incidencia del sol. Por un lado, pese a que se trata de un proyecto residencial, se reservan ciertas plantas para diferentes tipos de dotaciones, dejando en estos espacios mayor altura entre forjados. 

La propia estructura permite liberar la planta, por lo que queda garantizada la flexibilidad entre las diferentes actividades que se puedan proponer. Por otro lado, la protección solar determinará en gran parte esta imagen de los alzados. Una celosía cerámica gana presencia en los tramos que den a espacios que precisen de esta protección, mientras que desaparece en orientaciones menos afectadas o en plantas donde las terrazas han ganado terreno y su propio forjado es suficiente para frenar la incidencia del sol. 

Proyecto Marta Pérez de AlbénizProyecto Marta Pérez de Albéniz

El último punto clave del edificio es la estructura. Esta es la que ordena los espacios dentro de la vivienda, actuando como filtro entre espacios sirvientes y servidos. Los grandes vuelos perimetrales de la misma permiten una planta libre, además de poder prescindir de elementos portantes en fachada para no interrumpir la horizontalidad de los alzados antes mencionada. En el contacto de la torre con el suelo la fachada llega a desaparecer para crear una falsa apariencia de que el edificio no toca el suelo, retranqueándose los accesos hasta el punto donde parten los muros estructurales. Aquí vuelve a jugar un papel el movimiento al variar continuamente el espesor de los forjados en un esfuerzo por optimizar el hormigón, que queda visto en techos y muros creando un carácter diferente y personal en las viviendas. 

Proyecto Marta Pérez de AlbénizProyecto Marta Pérez de AlbénizProyecto Marta Pérez de AlbénizProyecto Marta Pérez de Albéniz

TITLE_Más proyectos

Más proyectos

Aplicaciones anidadas

Mas proyectos_Clara Doyhambehere

Alcal Albergue: espacio de encuentros

Clara Doyhambehere

Ver proyecto "Alcal Albergue: espacio de encuentros"

Mas proyectos_IMG_Clara Doyhambehere

Ver proyecto "Alcal Albergue: espacio de encuentros"